Aller au contenu principal
Programmes neufs
Nos Références
Qui sommes nous ?
Espace acquéreur
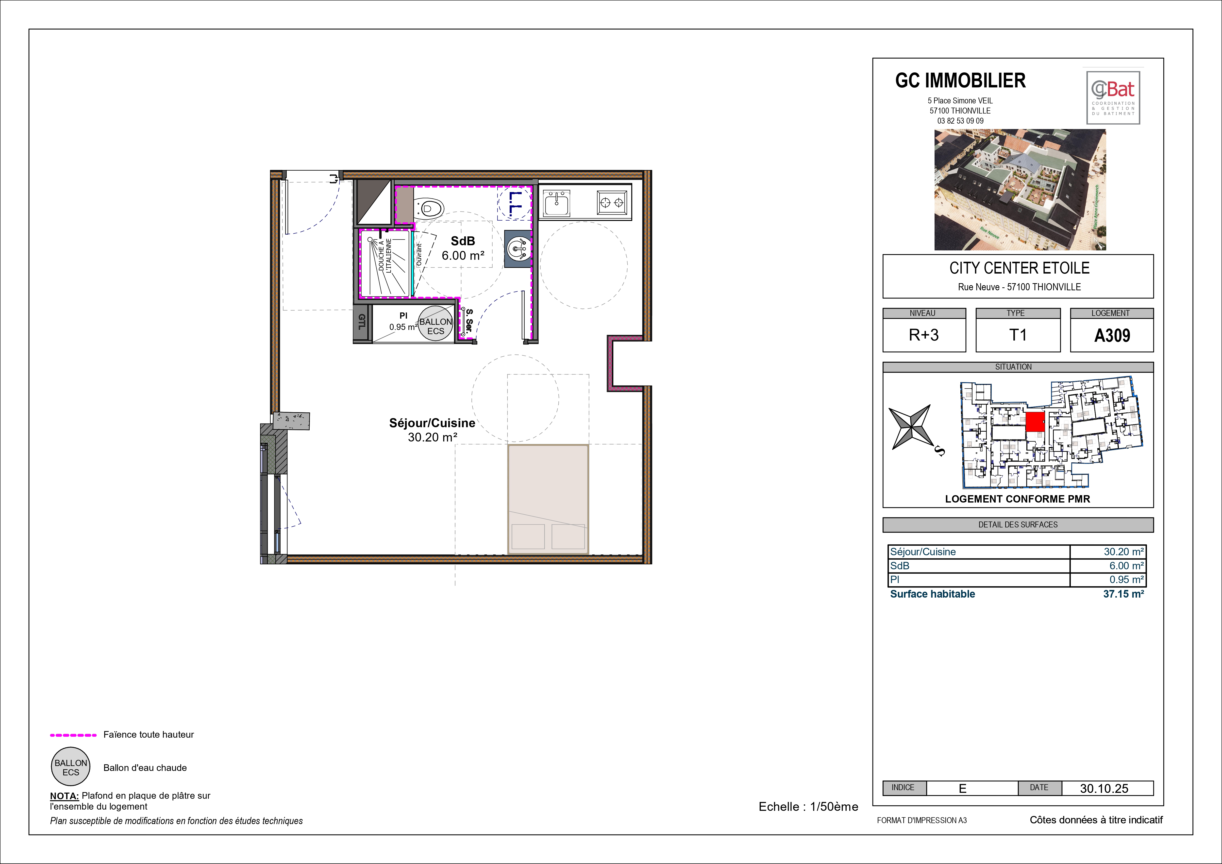
A309 City Center
Thionville -
Place Anne Grommerch , 57100 Thionville
1
1
Photos
Video
Brochure
Localisation
Localisation :
Thionville
Type :
F1
Superficie :
37.25 m²
Prendre rendez-vous
Caractéristiques
City Center
Je souhaite avoir plus d’informations pour :